AVD Business
AVD Technology
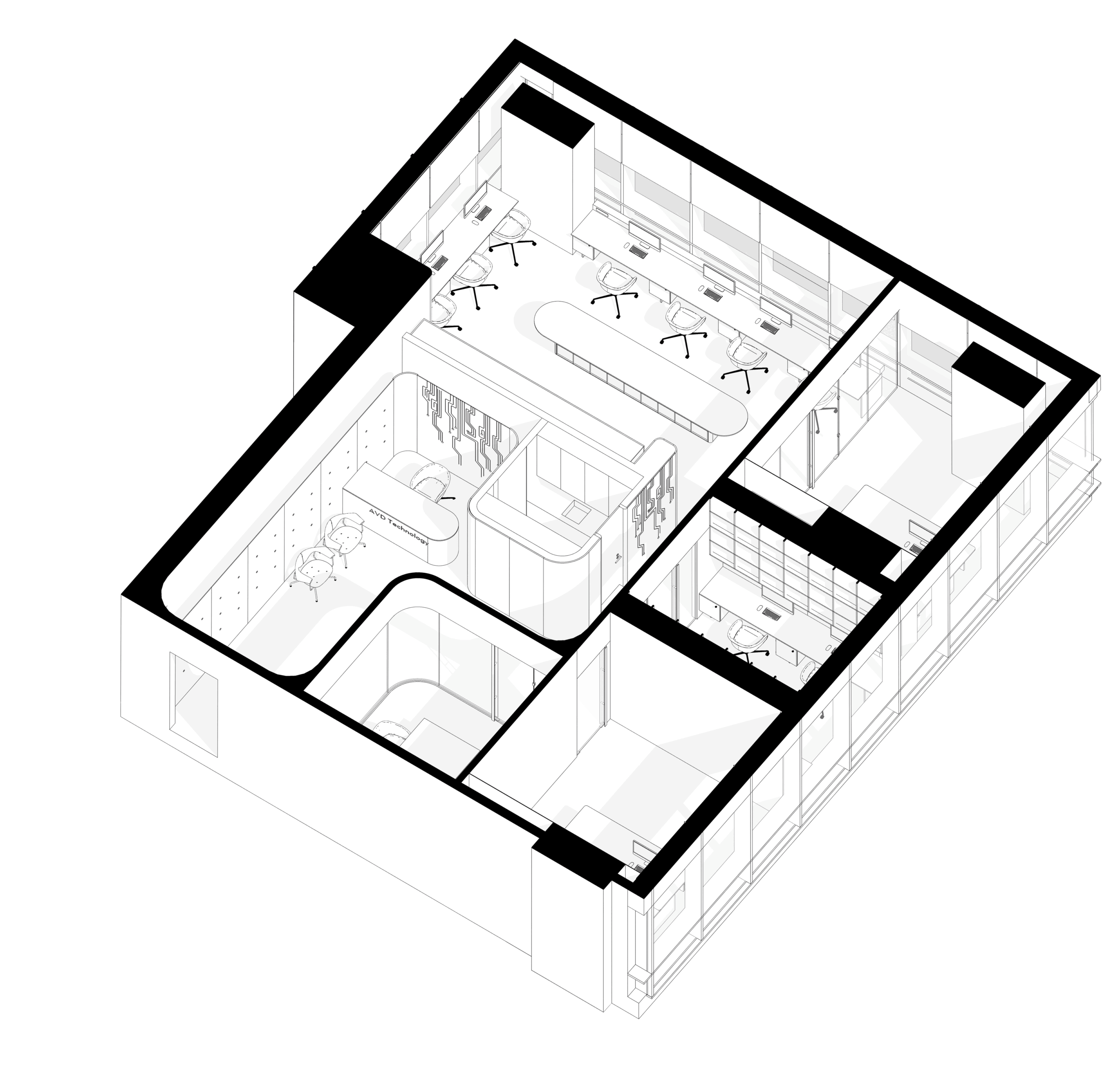
It is the interior renovation project of AVD Technology Office. The 115 m² office, where 35 people can work, was designed with a technology theme inspired by printed circuit boards. This theme was emphasized both in the plan setup and in the material selection.
The counter record, which was one of the main materials of the first "Personal Computer" produced by Apple in 1976, has been one of the main concepts of the AVD Technology Office. The specially designed wooden furniture in the office is designed with reference to the original color of the Apple computer. As a result of meticulous color selection and the combined use of metal-wood surfaces, both technological and warm and comfortable working areas have been created. The skillful combination of innovative materials is an indication of Menar Yapı's experience and mastery of details.
| Project Type | Office |
|---|---|
| Project Year | 2020 |
| Project Location | İstanbul |
| Architectural Design | Ayda Architects |